Korišćenjem našeg sajta slažete se sa politikom privatnosti i poslovanja.
Korišćenjem našeg sajta slažete se sa politikom privatnosti i poslovanja.
0.0
308 m2
CG
PR/19
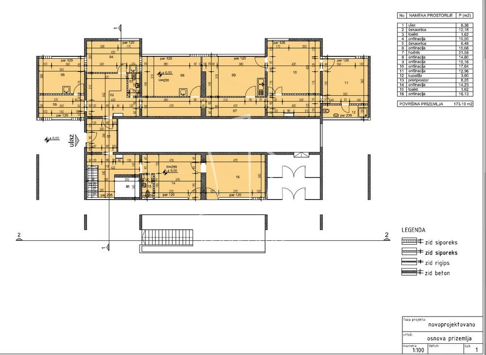
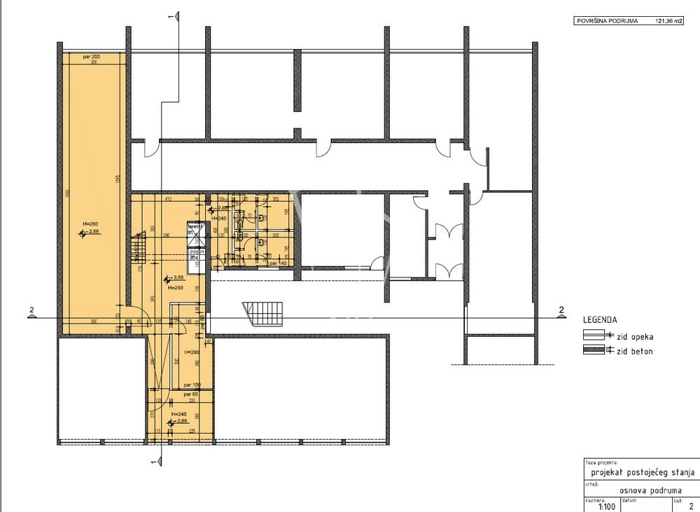
Izdaje se potpuno renoviran poslovni prostor od 308 m2, namenski projektovan za medicinsku ustanovu ali može biti i za druge delatnosti - višenamenski.
Prostor je spreman za useljenje sa kompletnim instalacijama visokog standarda.
Struktura:
• Dva funkcionalna nivoa povezana liftom i stepeništem
• Gornji nivo (180 m2): 12 prostorija i glavni ulaz
• Donji nivo (128 m2): sa dva zasebna ulaza
Ključne instalacije:
• Agregat 45 kW i kompletan IT mrežni sistem
• Klimatizacija, ventilacija, spušteni plafoni
• Video nadzor, alarm, bezbednosni sistemi
• Ugrađen nameštaj i podovi od kvalitetne granitne keramike
Idealno za:
Specijalističke ordinacije, poliklinike, ambulante, dijagnostičke centre, stomatološke klinike ili biotehnološke laboratorije.
Prednosti:
Potpuno renoviran, fleksibilan raspored, vrhunski tehnički standard, funkcionalna organizacija prostora.
Mogućnost zakupa 3 garažna mesta.
Kontaktirajte nas da pogledate prostor i za više informacija.
Agencijska provizija 50% vrednosti jedne mesečne zakupnine.
Agent: Jasna Šnajder, br. licence:2844
"Art nekretnine" d.o.o. Beograd
Reg. br.339
011/26-20-734
SD02
Izdaje se potpuno renoviran poslovni prostor od 308 m2, namenski projektovan za medicinsku ustanovu ali može biti i za druge delatnosti - višenamenski.
Prostor je spreman za useljenje sa kompletnim instalacijama visokog standarda.
Struktura:
• Dva funkcionalna nivoa povezana liftom i stepeništem
• Gornji nivo (180 m2): 12 prostorija i glavni ulaz
• Donji nivo (128 m2): sa dva zasebna ulaza
Ključne instalacije:
• Agregat 45 kW i kompletan IT mrežni sistem
• Klimatizacija, ventilacija, spušteni plafoni
• Video nadzor, alarm, bezbednosni sistemi
• Ugrađen nameštaj i podovi od kvalitetne granitne keramike
Idealno za:
Specijalističke ordinacije, poliklinike, ambulante, dijagnostičke centre, stomatološke klinike ili biotehnološke laboratorije.
Prednosti:
Potpuno renoviran, fleksibilan raspored, vrhunski tehnički standard, funkcionalna organizacija prostora.
Mogućnost zakupa 3 garažna mesta.
Kontaktirajte nas da pogledate prostor i za više informacija.
Agencijska provizija 50% vrednosti jedne mesečne zakupnine.
Agent: Jasna Šnajder, br. licence:2844
"Art nekretnine" d.o.o. Beograd
Reg. br.339
011/26-20-734
SD02
Infostan:
-
Kablovska:
-
Struja:
-
Telefon:
-
Internet:
-
Održavanje zgrade:
-
Depozit:
da
Parking:
Mogu_nost zakupa 3 gar. mesta
Interfon:
da
Stanje:
-
Godina:
-
Namešten:
Prazan
Terasa - lođa:
-
Francuski balkon:
-
Rampa za kolica:
-